
Nieuwbouwproject met 20 appartementen met garage en gemeenschappelijk zwembad
Nieuwbouwproject met 20 appartementen in Leiria, Marrazes. (referentie: A_Mar.Lei_1)
Dit nieuwbouwproject situeert zich op een groene heuvel op slechts enkele minuten van het centrum van Leiria
Het gebouw heeft 3 levels, waarbij de garages ondergronds liggen en de appartementen respectievelijk op het gelijkvloers en de eerste verdieping. Alle appartementen hebben een gelijkvormige indeling en zijn in spiegelbeeld tegen over elkaar opgedeeld.
De grote ramen die op de terrassen uitkomen zijn voornamelijk zuid en west gericht zodat natuurlijke lichtinval en warmte worden geoptimaliseerd. De overhangende dakrand beperkt de impact van de zomerse hitte.
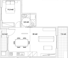
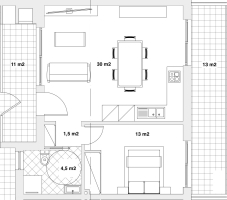
Indeling van de 1-slaapkamerappartementen:
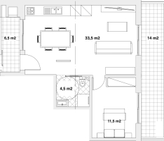
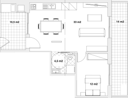
Indeling van de 2-slaapkamerappartementen:
Belangrijkste kenmerken:
1-slaapkamerappartementen (slaapkamer + woonruimte)
| bruto opp. | garage | privé tuin | prijs | ||
| Appartement 3 | 90,50m² | gelijkvloers | Lot 23 / 38,50m² | 36,48m² | € 250 000,00 |
| Appartement 4 | 82,98m³ | gelijkvloers | Lot 24 / 31,04m³ | 65,40m³ | € 260 000,00 |
| Appartement 5 | 85,52m³ | gelijkvloers | Lot 25 / 43,90m³ | 36,00m³ | € 250 000,00 |
| Appartement 6 | 74,06m³ | gelijkvloers | Lot 26 / 36,80m³ | 68,12m³ | € 260 000,00 |
| Appartement 7 | 88,57m³ | gelijkvloers | Lot 33 / 20,70m³ | 91,11m³ | € 260 000,00 |
| Appartement 8 | 82,93m³ | gelijkvloers | Lot 34 / 34,50m³ | 89,97m³ | € 270 000,00 |
| Appartement 9 | 98,70m³ | gelijkvloers | Lot 35 / 26,27m³ | 157,44m³ | € 330 000,00 |
| Appartement 10 | 95,91m² | gelijkvloers | Lot 36 / 18,75m³ | 179,20m³ | € 330 000,00 |
| Lot 29 / 33,20m³ | - | ||||
| Appartement 14 | 82,98m² | 1ste verdieping | Lot 30 / 36,64m³ | - | € 220 000,00 |
| Lot 31 / 38,60m³ | - | ||||
| Lot 32 / 19,80m³ | - | ||||
| Lot 37 / 18,75m³ | - | ||||
| Lot 38 / 18,75m³ | - | ||||
| Appartement 19 | 98,70m³ | 1ste verdieping | Lot 39 / 18,75m² | - | € 260 000,00 |
| Appartement 20 | 107,43m³ | 1ste verdieping | Lot 40 / 25,00m³ | - | € 280 000,00 |
2-slaapkamerappartementen (2 slaapkamers + woonruimte)
| bruto opp. | garage | privé tuin | prijs | ||
| Appartement 1 | 97,33m³ | gelijkvloers | Lot 21 / 31,04m² | 61,44m³ | € 290 000,00 |
| Appartement 2 | 97,33m² | gelijkvloers | Lot 22 / 38,50m² | 61,44m³ | € 300 000,00 |
| Appartement 11 | 112,43m³ | 1ste verdieping | Lot 27 / 39,73m² | - | € 280 000,00 |
| Appartement 12 | 98,51m³ | 1ste verdieping | Lot 28 / 39,30m³ | - | € 270 000,00 |
De verkoop start initieel op plan, alle vergunningen en wettelijke documenten hiervoor zijn reeds in orde. Bij 30% verkoop worden de werken opgestart.
| Alcobaça | 30 km / 28 min |
| Aljubarrota | 25 km / 24 min |
| Batalha | 7 km / 11 min |
| Fátima | 23 km / 30 min |
| Nazaré | 40 km / 31 min |
| Óbidos | 65 km / 41 min |
| Peniche | 88 km / 62 min |
| Salir do Porto | 51 km / 39 min |
| São Martinho do Porto | 50 km / 35 min |
| Tomar | 48 km / 40 min |
Deze website maakt gebruik van cookies.